Solução de aterro sanitário rentável para cidade de Araçatuba, SP

Autores

  • Ricardo Henrique Maschio Vieira Centro Universitário Católico Salesiano Auxilium
  • William Seiji Inagaki Suda Centro Universitário Católico Salesiano Auxilium
  • Vicente Luiz Rodrigues Tavares Centro Universitário Católico Salesiano Auxilium
  • Camila Fernanda Marsal Breda Centro Universitário Católico Salesiano Auxilium
  • Luis Filipi Bianco Gavioli Centro Universitário Católico Salesiano Auxilium
  • Natalia Felix Negreiros Centro Universitário Católico Salesiano Auxilium

DOI:

https://doi.org/10.20435/multi.v23i53.1605

Palavras-chave:

Saneamento, Sustentabilidade, Resíduos Sólidos.

Resumo

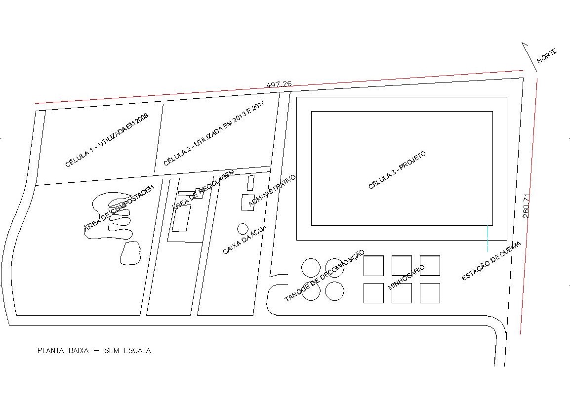
O presente trabalho tem como finalidade principal solucionar o problema de descarte de materiais sólidos em aterro sanitário, que se agrava a cada dia na cidade de Araçatuba-SP, e o intuito adjacente de fazer com que o local aumente a sua capacidade de acolhimento que se encontra no limite e assim realizar o reaproveitamento do lixo recebido em húmus. Devido ao problema de proximidade do aterro ao aeroporto da cidade, o município acabou não dando continuidade a obras futuras, mesmo tendo adquirido um terreno próximo para possíveis ampliações, o qual está incluso neste projeto, de modo a dar continuidade a trabalhos antigos. A falta de planejamento e estudo da sustentabilidade envolvida no entorno do terreno levou à paralização dessas obras, que podem trazer para a região, além de tempo de sobra para acomodação dos resíduos, a alternativa de se realizar um trabalho paralelo e rentável na área da produção de adubo orgânico, podendo servir de exemplo a muitas outras áreas com as mesmas restrições e que estão em limite de vida útil.

Biografia do Autor

Ricardo Henrique Maschio Vieira, Centro Universitário Católico Salesiano Auxilium

  • Acadêmico do 9º Termo Engenharia Civil pela instituição Centro Universitário Católico Salesiano Auxilium - Araçatuba - SP.
  • Projetista de Eletrica e Telecomunicações na empresa M&A Soluções Tecnológicas e estudante de Engenharia Civil na instituição Centro Universitário Católico Salesiano Auxilium de Araçatuba - São Paulo

William Seiji Inagaki Suda, Centro Universitário Católico Salesiano Auxilium

  • Graduando em Engenharia Civil, Graduado em Engenharia da Computação e Especialista em Redes, Conceitos, Estruturas e Segurança pelo Centro Universitário Católico Salesiano Auxilium, Araçatuba, SP.

Vicente Luiz Rodrigues Tavares, Centro Universitário Católico Salesiano Auxilium

  • Acadêmico do 9º Termo Engenharia Civil pela instituição Centro Universitário Católico Salesiano Auxilium - Araçatuba - SP.

Camila Fernanda Marsal Breda, Centro Universitário Católico Salesiano Auxilium

  • Graduanda em Engenharia Civil pelo Centro Universitário Católico Salesiano Auxilium, Araçatuba, SP.

Luis Filipi Bianco Gavioli, Centro Universitário Católico Salesiano Auxilium

  • Acadêmico do 9º Termo Engenharia Civil pela instituição Centro Universitário Católico Salesiano Auxilium - Araçatuba - SP.

Natalia Felix Negreiros, Centro Universitário Católico Salesiano Auxilium

  • Mestre e Doutora em Ecologia e Recursos Naturais pela Universidade Federal de São Carlos (UFSCAR). Graduada em Ciências Biológicas pela Universidade Federal de Alfenas (UNIFAL), MG. Docente no Centro Universitário Católico Salesiano Auxilium, Araçatuba, SP

Referências

ARAÇATUBA (Cidade). Lei n. 7.525, de 12 de abril de 2013. Dispõe sobre a proibição de recebimento de resíduos e de rejeitos de qualquer natureza, proveniente de outros municípios, no aterro sanitário de Araçatuba ou em qualquer outro equipamento ou empreendimento público, privado ou público-privado no Município de Araçatuba. Disponível em: <http://www.camaraaracatuba.com.br/site/legislacao/legislacao.asp>. Acesso em: 11 maio 2016.

______. Projeto de melhoria da estrutura de equipamentos públicos e programas de saúde do município de Araçatuba – SP. [s.d.]. Disponível em: <http://www.camaraaracatuba.com.br/site/legislacao/legislacao.asp>. Acesso em: 11 maio 2016.

______. Lei n. 6.904, de 4 de setembro de 2007. Dispõe sobre a proibição do recebimento de lixo de qualquer natureza, seja domiciliar, industrial, hospitalar, agrícola ou tecnológico, proveniente de outros municípios, no aterro sanitário de Araçatuba. Disponível em: <http://www.camaraaracatuba.com.br/site/legislacao/legislacao.asp>. Acesso em: 11 maio 2016.

ASSOCIAÇÃO BRASILEIRA DE NORMAS TÉCNICAS (ABNT). NBR 10004: Resíduos sólidos - classificação. Rio de Janeiro, 2004, 71p.

______. NBR 13896: Aterros de resíduos não perigosos - critérios para projeto, implantação e operação. Rio de Janeiro, 1997. 12p.

AZEVEDO NETO, J. M. et al. Manual de Hidráulica. 8. Ed. São Paulo: E. Edgard Blücher, 1998.

BRASIL. Presidência da República Casa Civil. Lei n. 12.725, de 16 de outubro de 2012. Dispõe sobre o controle da fauna nas imediações de aeródromos. Brasília, DF, 2012. Disponível em: <http://www.planalto.gov.br/ccivil_03/_Ato2011-2014/2012/Lei/L12725.htm>. Acesso em: 11 maio 2016.

______. Comando da Aeronáutica. Investigação e Prevenção de Acidentes Aeronáuticos. Plano básico de gerenciamento do risco aviário. 2011. [Apostila]. Disponível em: <http://www.cenipa.aer.mil.br/cenipa/Anexos/article/205/PCA_3-2_PBGRA.pdf>. Acesso em: 22 maio 2016.

______. Departamento Nacional de Infra-Estrutura de Transportes. Manual de drenagem de rodovias. 2. ed. Rio de Janeiro: DNIT, 2006. Disponível em: <http://www1.dnit.gov.br/normas/download/Manual_de_Drenagem_de_Rodovias.pdf>. Acesso em: 19 maio 2016.

CENTRO INTEGRADO DE INFORMAÇÕES AGROMETEOROLÓGICAS (CIIAGRO). [s.d.]. Disponível em: <http://www.ciiagro.sp.gov.br/>. Acesso em: 11 maio 2016.

COMITÊ DA BACIA HIDROGRÁFICA DO BAIXO TIETÊ (CBH-BT). Deliberação CBH-BT n. 124/2013. Birigui, SP, maio 2013. Disponível em: <http://www.sigrh.sp.gov.br/public/uploads/deliberation/%5C5949/deliberacao-124-2013-cgr-aracatuba.pdf >.

COMPANHIA AMBIENTAL DO ESTADO DE SÃO PAULO (CETESB). Inventário Estadual de Resíduos Sólidos Urbanos de 2014. São Paulo: CETESB, 2015. (Série Relatórios). Disponível em: <http://residuossolidos.cetesb.sp.gov.br/wp-content/uploads/sites/36/2013/11/residuosSolidos2014.pdf>. Acesso em: 11 maio 2016.

CONSELHO NACIONAL DO MEIO AMBIENTE (CONAMA). Resolução CONAMA n. 4, de 9 de outubro de 1995. Disponível em: <www.cprh.pe.gov.br/downloads/4de9deoutubrode1995.doc>. Acesso em: 22 maio 2016.

COSTA, Ruy Fabio Melo; CARDOSO, Raisa Nicole Campos. Reaproveitamento do lixo orgânico como forma de produção de biofertilizante na região Norte. In: ENCONTRO NACIONAL DE ENGENHARIA DE PRODUÇÃO, 31., Belo Horizonte, MG, 4-7 out. 2011. Anais... Belo Horizonte: Enegep, 2011.

CULOSSI, Juliana. Aterro sanitário começa a funcionar na segunda-feira. Folha da Região, Araçatuba, 18 maio 2002. Disponível em: <http://www.folhadaregiao.com.br/jornal/2002/05/18/cida02.php>. Acesso em: 19 maio 2016.

EMPRESA BRASILEIRA DE PESQUISA AGROPECUÁRIA (EMBRAPA). Minhocultura e produção de húmus para a agricultura familiar. Pelotas: EMBRAPA, dez. 2006. (Circular Técnica, 57). Disponível em: <http://www.infoteca.cnptia.embrapa.br/bitstream/doc/746014/1/Circular57.pdf>. Acesso em: 28 maio 2016.

FARIA, Mário Rubens Antunes. Caracterização do resíduo sólido urbano da cidade de Leopoldina-MG: proposta de implantação de um centro de triagem. Revista APS, Juiz de Fora, v. 8, n. 2, p. 96-108, jul./dez. 2005. Disponível em: <http://www.ufjf.br/nates/files/2009/12/caractsolo.pdf>. Acesso em: 19 maio 2016.

FURTADO, Zeide Nogueira de Camargo. Serviços Técnicos de Consultoria sobre Normas Técnicas - aterro sanitário. CGR Araçatuba – Associação dos Engenheiros e Arquitetos da Alta Noroeste (AEAN). CREA SP - ART 92221220130564039. Araçatuba, 6 mar. 2013.

______. Vistoria e parecer técnico ambiental. CGR Araçatuba, Ministério Público Estadual, São Paulo. CREA SP - ART 92221220150785992. Araçatuba, 25 fev. 2015.

G1. Araçatuba completa 106 anos de história; conheça curiosidades. Globo.com, Rio Preto e Araçatuba, 2 dez. 2014. Disponível em: <http://g1.globo.com/sao-paulo/sao-jose-do-rio-preto-aracatuba/noticia/2014/12/aracatuba-completa-106-anos-de-historia-conheca-curiosidades.html>. Acesso em: 13 mar. 2016.

GALDINO, Ronaldo Ruiz. Edna promete brigar por expansão do atual aterro. Folha da Região, Araçatuba, 19 fev. 2016. Disponível em: <http://www.folhadaregiao.com.br/Materia.php?id=394823>. Acesso em: 18 jun. 2016.

INSTITUTO BRASILEIRO DE GEOGRAFIA E ESTATISTICA (IBGE). Araçatuba - infográficos: dados gerais do município. 2009. Disponível em: <http://cidades.ibge.gov.br/painel/painel.php?codmun=350280>. Acesso em: 12 mar. 2016.

______. Araçatuba - infográficos: dados gerais do município. 2002. Disponível em: <http://cidades.ibge.gov.br/painel/painel.php?codmun=350280>. Acesso em: 12 mar. 2016.

LIMA, José Dantas. Sistema Integrados de Destinação Final de Resíduos Sólidos Urbanos. 1. ed. Paraíba: ABES, 2005.

MANSOR, Maria Teresa Castilho; CAMARÃO, Teresa Cristina Ramos Costa; CAPELINI, Márcia; KOVACS, André; FILET, Martinus; SANTOS, Gabriela de Araújo; SILVA, Amanda Brito. Resíduos sólidos. São Paulo: Secretaria do Meio Ambiente, 2010. 152 p. (Cadernos de Educação Ambiental). Disponível em: <http://www.ambiente.sp.gov.br/cea/2014/11/19/6-residuos-solidos/>. Acesso em: 18 maio 2016.

OLIVEIRA, Emídio Cantídio Almeida; SARTORI, Raul Henrique; GARCEZ, Tiago B. Compostagem. Curso de Pós-Graduação em Solos e Nutrientes de Plantas, Universidade de São Paulo (USP), Piracicaba, SP, 2008. 19f. Disponível em: <http://www.agencia.cnptia.embrapa.br/Repositorio/Compostagem_000fhc8nfqz02wyiv80efhb2adn37yaw.pdf>. Acesso em: 11 maio 2016.

PAULÍNIA, Cidade [de]. Lei Complementar n. 53, de 26 de dezembro de 2011. Dispõe sobre o parcelamento, uso e ocupação do solo no município de Paulínia, e dá outras providências. Disponível em: <http://consulta.siscam.com.br/camarapaulinia/arquivo?id=39415>. Acesso em: 11 maio 2016.

______. Lei n. 2.852, de 22 de dezembro de 2006. Institui o plano diretor do município de Paulínia. Disponível em: <http://consulta.siscam.com.br/camarapaulinia/arquivo?id=36566>. Acesso em: 11 maio 2016.

PENTEAADO, Silvio Roberto. Produção de húmus de minhoca. Infobibos, Campinas, s.d. Disponível em: <http://cursos.infobibos.com/cursosonline/Aulas/Agrorganica/Aula9/Anexo%209%20-%20H%C3%BAmus%20de%20Minhoca.pdf >. Acesso em: 25 maio 2016.

PINTO, Gheysa Julio; HATA, Fernando Teruhiko. Implantação e manejo de minhocário de baixo custo. [s.d.]. Disponível em: <http://www.unitrabalho.uem.br/administracao/bd_livros/arquivos/010814093440-2.pdf>. Acesso em: 22 maio 2016.

PLANO MUNICIPAL de Abastecimento de Água e Esgotamento Sanitário do Município de Araçatuba. Diagnóstico dos sistemas e serviços de abastecimento de água e esgotamento sanitário. Versão Final. 2011. Disponível em: <http://aracatuba.sp.gov.br/relatorio-final-plano-de-saneamento-daea-tomo-i-2/#>. Acesso em: 12 mar. 2016.

SÃO PAULO, Estado [de]. Ministério Público do Estado de São Paulo. Ação Civil Pública Urbanístico-Ambiental com pedido de liminar, de 3 de março de 2016. Disponível em: <http://www.mpsp.mp.br/portal/pls/portal/!PORTAL.wwpob_page.show?_docname=2584027.PDF>. Acesso em: 20 maio 2016.

______. Sistema Integrado de Gerenciamento de Recursos Hídricos (SIGRH). Deliberação CBH-BT n. 124, de 3 de maio de 2013. Birigui, 2013. Disponível em: <http://www.sigrh.sp.gov.br/public/uploads/deliberation/%5C5949/deliberacao-124-2013-cgr-aracatuba.pdf>. Acesso em: 18 maio 2016.

SCHIEDECK, G.; GONÇALVES, M. de M.; SCHWENGBER, J. E. Minhocultura e produção de húmus para a agricultura familiar. Pelotas: Embrapa Clima Temperado, 2006. 11 p. (Circular técnica, 57).

SILVA, Lais Coelho. Cálculo do fator topográfico da equação universa de perda de solos na bacia do córrego baguaçu, Araçatuba-SP utilizando sig¹. In: CONGRESSO IBEROAMERICANO DE ESTUDIOS TERRITORIALES Y AMBIENTALES, 6., São Paulo, 8-12 set. 2014. Anais... São Paulo: USP, 2014. Disponível em: <http://6cieta.org/arquivos-anais/eixo6/Lais%20Coelho%20Nascimento%20Silva,%20Ailton%20Luchiari.pdf>.cAcesso em: 24 mar. 2016.

SILVA, Lais Coelho. Cálculo do fator topográfico da equação universa de perda de solos na bacia do córrego baguaçu, Araçatuba-SP utilizando sig¹. In: CONGRESSO IBEROAMERICANO DE ESTUDIOS TERRITORIALES Y AMBIENTALES, 6., São Paulo, 8-12 set. 2014. Anais... São Paulo: USP, 2014. Disponível em: <http://6cieta.org/arquivos-anais/eixo6/Lais%20Coelho%20Nascimento%20Silva,%20Ailton%20Luchiari.pdf>.cAcesso em: 24 mar. 2016.

SILVA, Renato Pires; FERREIRA, Osmar Mendes. Aterro sanitário de Aparecida de Goiânia, medição da vazão de chorume. Goiânia. 2005. Disponível em: <http://www.ucg.br/ucg/prope/cpgss/ArquivosUpload/36/file/Continua/ATERRO%20SANIT%C3%81RIO%20DE%20APARECIDA%20DE%20GOI%C3%82NIA,.pdf>. Acesso em: 19 maio 2016.

SOLUÇÕES AMBIENTAIS DE ARAÇATUBA (SAMAR). Coleta e tratamento. 2016. Disponível em: < https://samar.eco.br/esgoto/coleta-e-tratamento>. Acesso em: 20 maio 2016.

SUMI, Ernesto Massayoshi. Estudo hidrogeológico de um aterro sanitário instalado em uma antiga área de disposição irregular de resíduos sólidos. São Paulo, 2009. 164 p. Dissertação (Mestrado em Recursos Minerais e Hidrogeologia) - Instituto de Geociências, Universidade de São Paulo (USP), São Paulo, SP, 2009.

Downloads

Arquivos adicionais

Publicado

2018-03-23

Como Citar

Vieira, R. H. M., Suda, W. S. I., Tavares, V. L. R., Breda, C. F. M., Gavioli, L. F. B., & Negreiros, N. F. (2018). Solução de aterro sanitário rentável para cidade de Araçatuba, SP. Multitemas, 23(53), 49–69. https://doi.org/10.20435/multi.v23i53.1605